华体会官方网页版

欢迎您来到华采招标集团
||010-63392899 / 010-63509799
其他公告

镍铁冶炼项目厂前区公共办公生活设施系统一期工程之招待所精装修工程 澄清公告(二)

一、项目名称:镍铁冶炼项目厂前区公共办公生活设施系统一期工程之招待所精装修工程

二、项目编号:LZDC2021-G2-00062-HCZB

三、招标公告发布时间:2021年12月8日

四、澄清事项

关于本项目的招标,现对各投标单位提出的问题予以澄清。

1.由于工作量清单编纂需要时间,回标时间可否适当后延?

回复:以招标机构公告为准

2.根据招标文件,该项目的主要商务条件是:没有预付款、进度款为80%、后期决算后工程余款的支付要在五年后分两次结清?请明确

回复:详见招标文件

3.未见详细的工程决算周期的描述

回复:详见招标文件

4.请确认业主工程进度款等支付的具体周期是多久?

回复:详见招标文件

5.为减少项目本身的资金压力,农民工工资保证金部分可否以公司出具承诺函的形式予以确保?或者别的什么形式?

回复:详见招标文件

6.请明确该项目中的甲供材料范围

回复:本装修工程无甲供材

7.软装(艺术摆件、挂画、绿植、窗帘、装饰灯具、活动家具和备餐柜等)是否包含在包里?

回复:艺术摆件、绿植、活动家具和备餐柜不包含。挂画提供画框(可更换画面式)。客房窗帘采用遮光布艺加厚窗帘+纱帘。

8.招待所外立面是否包含在包里?

回复:不包含外墙装饰施工

9.欠缺物料手册即物料样板

回复:设计已发

10.材料品牌范围清单中设计师应明确规格型号和颜色选样等

回复:规格见图纸,品牌见招标文件要求,颜色及样式参见效果图(需送样、经发包人确认)。

11.招待所入口处建议设置一块大尺寸除泥垫

回复:可以

12.室内照明系统4000K似有不妥,建议采用更接近阳光背景色温的3000K灯具为宜。

回复:客房可采取3000暖白光,以提升灯光舒适度

13.招待所日常布草产品的洗涤是外委还是需要新增专业洗衣房机器设备?

回复:外委

14.标准间卫生间淋浴房的玻璃门开度似乎无法确保人员的出入方便,而且玻璃门回碰撞坐便器,存在安全隐患!

回复:淋浴间玻璃门需配套地面门顶器

15.一层电梯厅天棚嵌入式筒灯处缺节点做法?

image.png 

回复:做法参见 ZX-1-P03 节点7

16.一层公共卫生间是否有门套,如有请提供做法?

image.png 

回复:补充做法,双边包1.2厚防指纹不锈钢钛金门套。

17.一层大厅接待台是否要做?平面布置图未见其布置位置?

image.png 

回复:要做,详见ZX-1-L15

image.png 

18.图纸未见一层窗台石做法?

image.png 

回复:根据建筑图纸,一层没有窗台

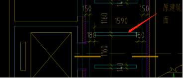
19.变更图纸要求所有墙面抹灰,请明确抹灰高度?

image.png 

回复:抹灰高度至楼板

20.客房衣柜背面图纸因衣柜遮挡,具体做法请明确

image.png 

回复:衣柜背面:刮腻子两遍,打磨平整。

21.信息网络系统图、用户电话交换系统图、有线电视系统图主线到前台办公室的走向不明确,是管路敷设还是桥架敷设?

image.png

回复:见图:ZX-DQ-07至ZX-DQ-10

22.紧急求助系统图主线到接待前台的走向不明确,是管路敷设还是桥架敷设?

image.pngimage.png 

回复:见图:ZX-DQ-07至ZX-DQ-10

23.监控未见系统图,需明确配管配线的规格型号;

image.png

回复:监控不含在本项目内

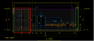
24.标准间卫生间开门位置,在水电平面图与现场门洞位置不统一,将出现二次结构改造问题,拟或业主前期先行改造?是以总评布局图为准还是以房型图为准?

image.pngimage.png 

回复:以各客房装修平面图为准

25.房间插座线路走向图请补充;

回复:增加插座,补充图纸

26.一层公共区域餐厅,会议室无插座,是否后期增加?

回复:增加插座,补充图纸

27.二-六层公共走道内无清洁插座,是否后期需要增加?

回复:增加插座,补充图纸

28.系统图标注照明回路均为PC25管,管路偏大,是否需要调整?

回复:由中标人优化调整

29.客房卫生间内无接地LEB端子盒到点位敷设施工图

回复:LEB端子盒到点位敷设,参见建筑设计图纸电气专业做法

30.一楼房间内电箱无系统图是否与二-六楼相同?

回复:做法相同

31.电气平面图卫生间开门位置在卫生间中间,与现场不符以现场实际为准还是需要调整?

回复:以各客房装修平面图为准

32.给排水管路选用材料图纸上没有标注,材质不明确?

回复:给水:PPR管 排水:PVC管

33.上下水管必须确保上下定位准确

回复:准确

34.热水管是否应做保温?确定保温材料的品牌厚度规格

回复:包保温材料,橡塑保温材料

35.根据结构图纸,探索一下是否可以将两个房间的卫生间改造出一个共同管弄井?

回复:现场已施工完,中标人可以优化调整以增加观感,费用包含在总承包价内

36.公共走道冷热水管布放不合理,已严重影响空调风管的安装

回复:由中标人根据现场实际调整

37.现有桥架请确认是强电还是弱电的?两者务必分开安装

回复:两条桥架,弱电、强电分开布设

38.现场未见消防排烟系统及其图纸

回复:图纸参见建筑设计图纸暖通专业做法

39.室内卫生间排风装置未见图纸

回复:参见各房间天花灯具定位尺寸图及图例

40.大楼防雷等电位接驳未见敷设

回复:已敷设

41.卫生间下水管移位,同时建议采用PVC双层静音排水管

回复:现场采用PVC双层静音排水管

42.图纸中局部设计、做法等不明确部分,由中标人根据发包人提供的效果图优化、完善,费用包含在总包干报价中,原则上结算时不作增补签证。

43.现场的挡水条需要全部拆除

回复:不明确你们指的是哪里的问题。

44.墙面粉刷喷浆挂网是否需要额外列项,如不需要是否备注说明

回复:含在本项目范围内。

45.原墙体凹凸不平整,给后续装修增加工作量

回复:原墙体凹凸不平整,说明建筑验收不过关,要求建筑返工。

46.门框打膨胀螺丝位置是空心砖,影响装修质量

回复:门框打膨胀螺丝位置是空心砖,把门附近墙砖拆除,全部重新用页岩多孔砖砌筑

47.二楼客房卫生间的填洞(35mm*35mm)属于额外增加的

回复:出补图。

五、联系方式

招标代理机构:华采招标集团有限公司

地址:南宁市良庆区平乐大道21号广西路桥集团总部大厦主楼十七层1708号办公室

电话:0771-4308717

项目咨询联系人:李工

招标人:广西柳钢中金不锈钢有限公司

 址:柳州市北雀路117号 

联系人:李工

 话:0772-2595957

 

 

华采招标集团有限公司

2022年1月5日